关于我们联系我们 网站地图 您好!欢迎访问星空手机直播最新版本!
诚信立足·创新致远致力于研发、制造中国的高端轴承!
全国咨询热线:15137903805
您的位置: 主页 > hk星空体育 > wwe星空体育

2344、2347系列双向推力角接触球轴承

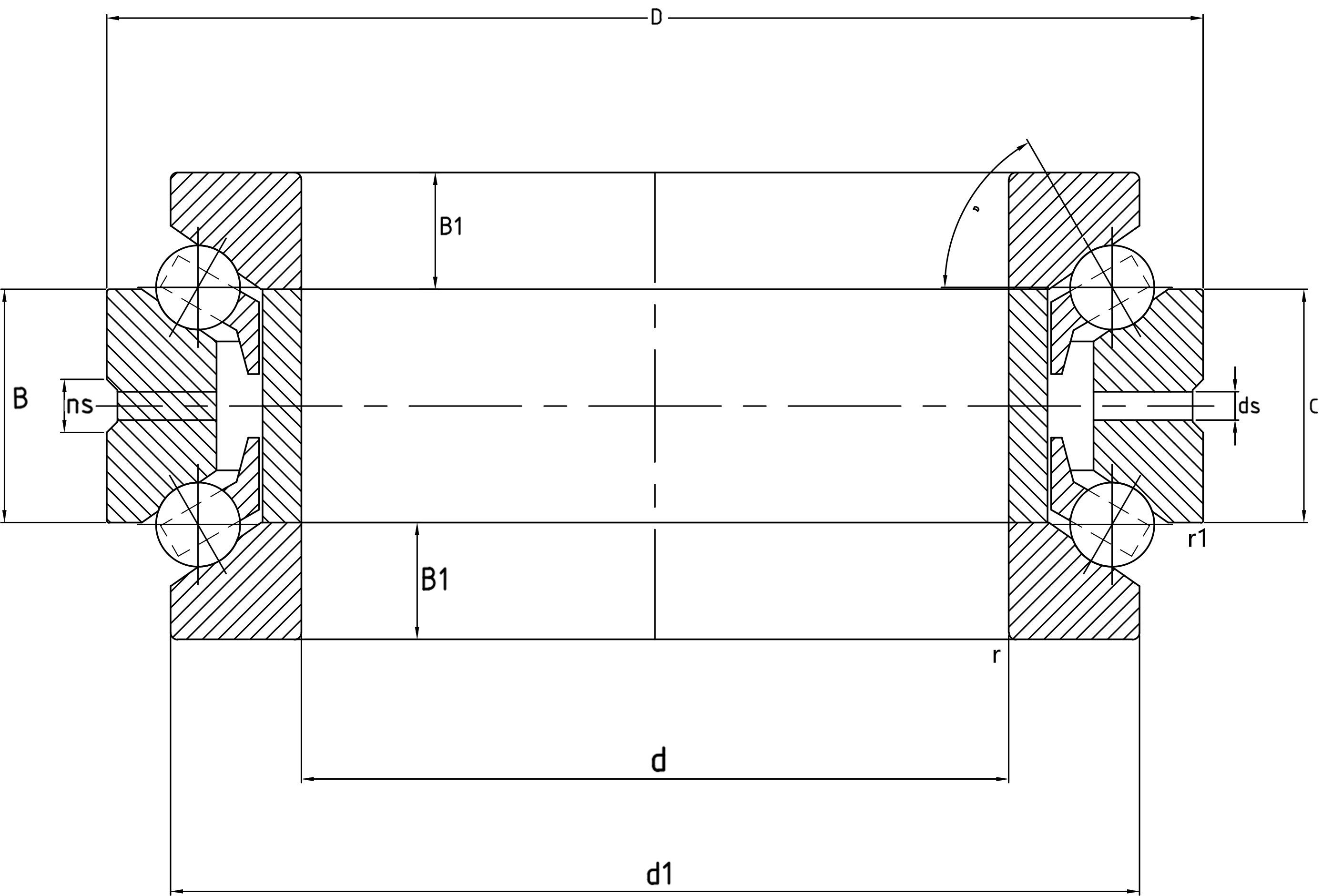
2344、2347系列双向推力角接触球轴承双向推力用接触球轴承由两个轴圈、一个座圈、一个隔套和两列滚动体及保持架组件组成。

在线咨询 全国热线
15137903805
产品简介 / PRODUCT INTRODUCTION

2344、2347系列双向推力角接触球轴承

双向推力用接触球轴承由两个轴圈、一个座圈、一个隔套和两列滚动体及保持架组件组成。修磨隔套的厚度即可调整轴承的间隙和预紧。轴承的接触角为60°。该轴承的公称外径和与其配套的双列圆柱滚子轴承的外径相同,但外圈与箱体孔之间有间隙,因而,双向推力角接球轴承不承受径向载荷,与双列圆柱滚子轴承配套使用以承受双向轴向载荷。

双向推力角接触球轴承分2344和2347两个尺寸系列,2344系列轴承用于与双列圆柱滚子轴承锥孔小端配合,2347系列用于大端。

参数1.png

参数2.png

1.png

2.png

3.png

4.png



热品推荐
Copyright (©) 2005-2025 星空手机直播最新版本 版权所有 备案号:豫ICP备10000262号

豫公网安备 41032202000151号

Baidu
map